专利状态
一种预搅拌砂浆生产线的烘干装置
专利申请进度
申请
2018-01-22
授权
2018-09-07
预估到期
2028-01-22
专利基础信息
申请号 申请日
授权公布号 授权公告日
分类号
分类
申请人名称 温州创新新材料股份有限公司
申请人地址
专利法律状态
  • 2020-12-25
    专利权质押合同登记的生效、变更及注销
    状态信息
    专利权质押合同登记的生效IPC(主分类):F26B11/04登记号:Y2020330001147登记生效日:20201208出质人:温州创新新材料股份有限公司质权人:兴业银行股份有限公司温州分行实用新型名称:一种预搅拌砂浆生产线的烘干装置授权公告日:20180907
  • 2018-09-07
    授权
    状态信息
    授权
摘要
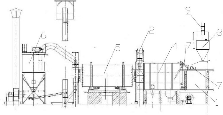
本实用新型公开了一种预搅拌砂浆生产线的烘干装置,涉及砂浆生产领域,其包括操作平台、湿砂料斗,煤料斗,沸腾炉、烘砂滚筒以及除尘器,所述湿砂料斗连通所述烘砂滚筒,所述煤料斗连通所述沸腾炉,所述沸腾炉连通所述烘砂滚筒并提供热源,所述煤料斗与沸腾炉之间设有煤渣破碎机,所述沸腾炉内设有自动清理机构,所述自动清理机构包括倾斜设置的斜板以及设置在所述斜板最低位置的螺旋排渣机。本实用新型具有工作稳定性好的优点。

返回首页 | 品牌大全 | 品牌排行 | 品牌问答 | 品牌资讯 | 品牌价值 | 关于我们 | 联系我们 | 免责声明

Copyright 2013-2020 品牌门户,牌子123(www.paizi123.cn) 版权所有 备案号:苏ICP备13009020号-7

网站地图