专利状态
一种具有隔音功能的医用双包套玻璃防火门
专利申请进度
申请
2020-10-22
授权
2021-08-06
预估到期
2030-10-22
专利基础信息
申请号 申请日
授权公布号 授权公告日
分类号
分类
申请人名称 中沃门业有限公司
申请人地址
专利法律状态
  • 2021-08-06
    授权
    状态信息
    授权
摘要
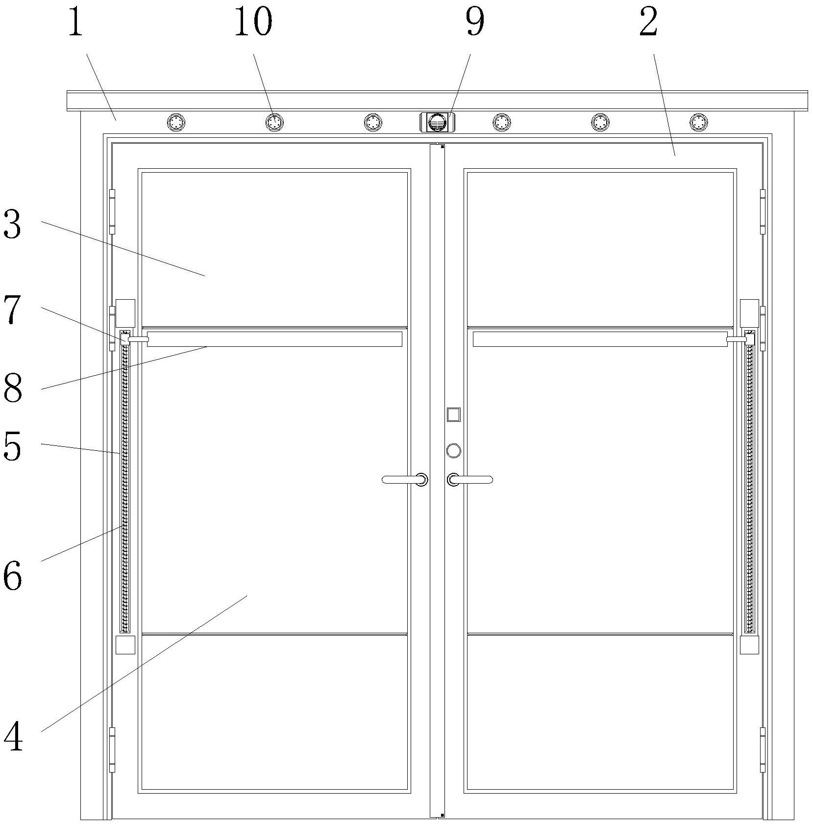
本实用新型公开了一种具有隔音功能的医用双包套玻璃防火门,包括双包门套、安装框、烟雾感应器和滑板,所述双包门套的内侧转动安装有金属门框,所述安装框焊接在金属门框的外侧面,且安装框的内部转动连接有定位丝杆,所述烟雾感应器固定安装在双包门套的上端中间位置,所述金属门框的侧面安装有侧边板,所述密封条通过密封槽与金属门框相互连接,所述横板的侧面固定安装有纤维棉板,所述滑板对称安装在侧边板的内部两侧,所述定位丝杆的下端外侧面焊接有传动齿轮。该具有隔音功能的医用双包套玻璃防火门,采用新型的结构设计,使得本装置安装使用的隔音效果较好,且该装置设置有烟雾处理结构,提高出现火灾时夹胶玻璃的可视效果。

返回首页 | 品牌大全 | 品牌排行 | 品牌问答 | 品牌资讯 | 品牌价值 | 关于我们 | 联系我们 | 免责声明

Copyright 2013-2020 品牌门户,牌子123(www.paizi123.cn) 版权所有 备案号:苏ICP备13009020号-7

网站地图